Interieur BOOST voor een Nieuwbouwwoning in Etten-Leur
Een nieuwbouwwoning is vaak een beetje zoals een leeg canvas. Witte muren, een frisse start… en in dit geval ook de meubels uit de vorige woning die gewoon weer een plekje kregen. Logisch natuurlijk.
Maar al snel merkten de bewoners dat het niet helemaal klopte. Hier en daar was iets geprobeerd, een muur met een knalkleur bijvoorbeeld, maar in plaats van sfeer bracht het juist onrust. Het sprong eruit, maar niet op de goede manier.
Visite omschreef hun huis als “netjes”. En eerlijk is eerlijk: dat was het ook. Strak, opgeruimd, nieuw. Maar precies dat voelde voor de bewoners ook een beetje… leeg. Het miste warmte. Het miste samenhang. Het miste dat gevoel van: hier horen wij.
Ze verlangden naar rust. Naar een interieur waarin alles met elkaar klopt. Geen losse keuzes meer, maar één geheel. Een huis dat niet alleen nieuw is, maar ook echt voelt als thuis.
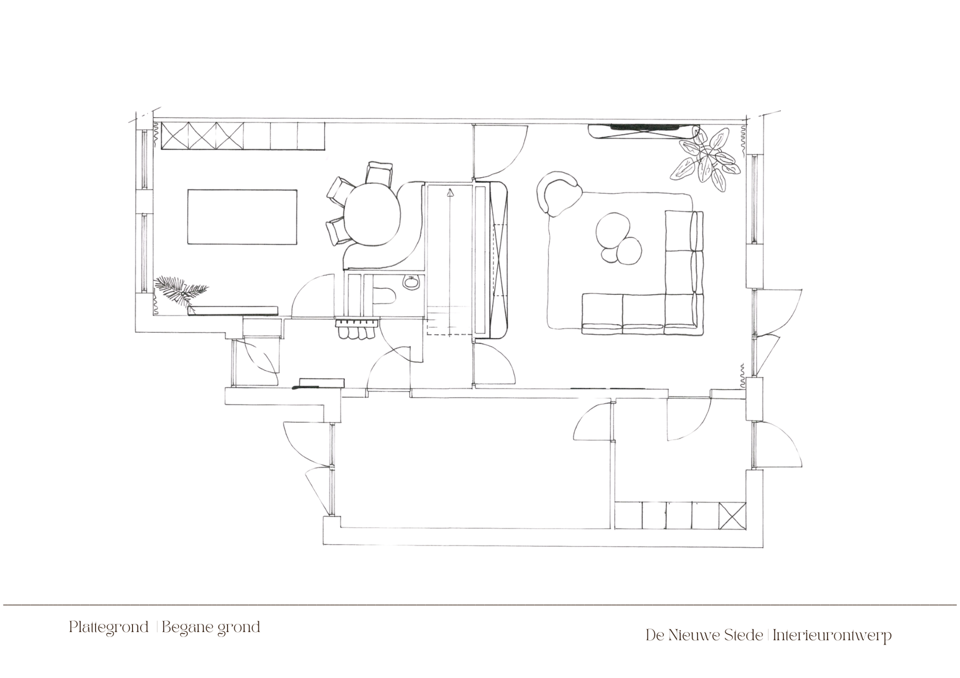
Daar zijn we begonnen. Ik maakte eerst een indelingsvoorstel, zodat de basis van de ruimte klopt. Die indeling hebben ze zelfs tijdens het ontwerpproces al uitgeprobeerd in huis – altijd een leuke en praktische stap om te voelen of het werkt in het dagelijks leven.
Vanuit die indeling heb ik de meubels geselecteerd en afgestemd, samen met de kleuren en materialen. De bestaande vloer en raambekleding konden gewoon blijven; een mooie basis die we hebben behouden. De muren kregen wél een nieuwe sfeer. Met een rustige basiskleur en hier en daar een behangaccent ontstaat nu warmte, diepte en samenhang.
Zo veranderde een “netjes nieuwbouwhuis” langzaam in een plek die voelt als één geheel. Een warm thuis waar je binnenkomt en denkt: ja, dit klopt.








